Ga direct naar de productinformatie
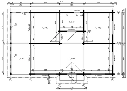
Lodge Garda 90 - 48m² + 14m² (terras)
1/7

Lodge Garda 90 - 48m² + 14m² (terras)

0 mensen die dit product nu bekijken

1 recensies

€44.399,00 EUR €47.999,00 EUR
Korte levertijd

Offerte aanvragen

Vraag eenvoudig een vrijblijvende offerte aan. Wij sturen je binnen 1 werkdag een persoonlijk voorstel, afgestemd op jouw wensen en situatie.

Productinformatie

Lodge Garda 90 combineert hoogwaardig vakmanschap met een warme, natuurlijke uitstraling. Deze royale lodge van 47,94 m² binnenruimte plus een 14,09 m² groot terras biedt een solide en duurzame leefruimte, vervaardigd uit gelamineerde 90 mm dikke Noordse sparrenstammen. Met vier functionele kamers en een slim ontwerp is deze lodge geschikt voor zowel recreatief gebruik als permanente bewoning.

Het zadeldak en de grote ramen zorgen voor een lichte en uitnodigende sfeer, terwijl de duurzame materialen garant staan voor jarenlang woonplezier.

Belangrijkste kenmerken

- Binnenruimte: 47,94 m²
- Terras: 14,09 m² inbegrepen
- Logprofiel: 90 mm gelamineerd Noordse sparrenhout
- Aantal kamers: 4
- Daktype: Zadeldak (28° helling)
- Nokhoogte: 400 cm
- Dakrandhoogte: 216 cm
- Afwerking: Naturel (onbehandeld)
- Fundering: Thermische blokken, betonplaat, grindpad, kruipruimte, houten paalfundering, straatstenen
- Buitendeur: 90 x 199 cm
- Kleur: Natuurlijk hout (onbehandeld)

Lodge Garda 90 is de ideale keuze voor wie een duurzame, sfeervolle en functionele houten woning zoekt met ruimte en comfort in een natuurlijke stijl.

Technische specificaties

Kenmerk Details
Basisafmetingen 657 x 856 cm
Kamerafmetingen 627 x 790 cm
Dakoppervlakte 89,23 m²


Levering

Wij leveren internationaal, rechtstreeks vanaf onze productielocaties. De levering gebeurt standaard als bouwpakket, zorgvuldig verpakt en met gedetailleerde montage-instructies. Montage op locatie is optioneel mogelijk – vraag gerust naar de mogelijkheden. De levertijd varieert per model en seizoen, gemiddeld tussen de 4 en 10 weken of op afspraak!

Betaling

Bij bestelling vragen wij een aanbetaling van 35%. Het resterende bedrag wordt voldaan vóór levering, afhankelijk van het gekozen lever- of montageschema. Betalen kan veilig via bankoverschrijving of diverse betaalmethoden. Voor projecten op maat maken wij een duidelijke betalingsplanning.

Voltooide werken

Bekijk onze gerealiseerde projecten in binnen- en buitenland. Van Zweden tot Portugal: onze lodges en tiny houses staan op de mooiste locaties. Laat je inspireren door eerdere leveringen en ontdek wat er mogelijk is. Foto’s vindt je op de pagina Voltooide werken.

Garantie & Kwaliteit

Bij ARchitect Tiny Homes staan kwaliteit en vakmanschap voorop. Daarom bieden wij op onze producten een garantie tegen houtrot tot 10 jaar, afhankelijk van het product. Zo kunt u zorgeloos genieten van uw woning. De exacte garantieperiode vindt u terug in de documentatie bij uw product.

Wij maken gebruik van langzaam groeiend, CE-gecertificeerd Noord-Europees hout, afkomstig uit duurzaam beheerde bossen. Onze productie voldoet aan de ISO 9001 en ISO 14001 normen, wat garant staat voor een efficiënte en foutloze productie

Installatiehandleidingen

Onze houtproducten worden geleverd met een eenvoudig te volgen installatiehandleiding om u door het montageproces te helpen. Dit betekent dat het met basisgereedschap en een helpende hand mogelijk is om het merendeel van onze producten zelf te installeren. Wel adviseren wij om professionele hulp in te schakelen als u een product heeft besteld dat ingewikkelder of groter is, zoals bijvoorbeeld blokhutten, blokhutten, prefabwoningen en dergelijke.

Bekijk hier onze algemene installatiehandleidingen.

Een kijkje achter de schermen!

"De woonvormen van morgen – vandaag al beschikbaar. Ontdek hoe modulaire bouw bijdraagt aan een duurzame toekomst."

Architect Tiny Homes