Een kijkje achter de schermen!

Tiny House Ottawa 44 - 14m²
Afhalen is op dit moment niet beschikbaar
Offerte aanvragen
Vraag eenvoudig een vrijblijvende offerte aan. Wij sturen je binnen 1 werkdag een persoonlijk voorstel, afgestemd op jouw wensen en situatie.
Productinformatie
Tiny House Ottawa is een compacte en slimme oplossing voor wie op zoek is naar een stijlvolle, duurzame en praktische houten woning of gastenverblijf. Dankzij het klassieke zadeldak en de slimme indeling met een halve verdieping, biedt dit tiny house verrassend veel ruimte binnen een beperkt oppervlak.
Gemaakt van massief Noord-Europees sparrenhout van 44 mm dik, is deze woning gebouwd voor duurzaamheid, comfort en een warme uitstraling. Grote dubbele deuren en een functioneel raam met kiep-draaimechanisme zorgen voor natuurlijk licht en ventilatie.
Perfect als tiny house, thuiskantoor, praktijkruimte of gastenverblijf!
Belangrijkste kenmerken:
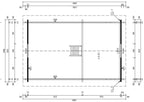
Binnenruimte: 13,77 m²
Verdiepingen: 1,5 (slaapzolder mogelijk)
Kamers: 2
Daktype: Zadeldak
Hoogte nok: 387,1 cm
Hoogte dakrand: 228,6 cm
Dakoppervlak: 21,57 m²
Fundering: Geschikt voor diverse types zoals thermoblokken, betonnen plaat of houten palen
Materialen & Afwerking:
Houtsoort: Massieve stammen van Noordse spar
Wanddikte: 44 mm
Afwerking: Natuurlijk, onbehandeld hout
Kleur: Naturel houtkleur (onbehandeld)
Vloer: Inclusief massieve houten vloer
Ramen: Kiep- en draaimechanisme, enkel glas (gehard)
Buitendeuren: Dubbele deur met gehard dubbel glas (160 x 193 cm)
De Tiny House Ottawa biedt een solide, natuurlijke en esthetische oplossing voor wie klein wil wonen zonder in te leveren op comfort.
📞 Neem contact met ons op voor meer informatie of een offerte op maat.
Levering
Wij leveren internationaal, rechtstreeks vanaf onze productielocaties. De levering gebeurt standaard als bouwpakket, zorgvuldig verpakt en met gedetailleerde montage-instructies. Montage op locatie is optioneel mogelijk – vraag gerust naar de mogelijkheden. De levertijd varieert per model en seizoen, gemiddeld tussen de 4 en 10 weken of op afspraak!
Betaling
Bij bestelling vragen wij een aanbetaling van 35%. Het resterende bedrag wordt voldaan vóór levering, afhankelijk van het gekozen lever- of montageschema. Betalen kan veilig via bankoverschrijving of diverse betaalmethoden. Voor projecten op maat maken wij een duidelijke betalingsplanning.
Voltooide werken
Bekijk onze gerealiseerde projecten in binnen- en buitenland. Van Zweden tot Portugal: onze lodges en tiny houses staan op de mooiste locaties. Laat je inspireren door eerdere leveringen en ontdek wat er mogelijk is. Foto’s vindt je op de pagina Voltooide werken.
Garantie & Kwaliteit
Bij ARchitect Tiny Homes staan kwaliteit en vakmanschap voorop. Daarom bieden wij op onze producten een garantie tegen houtrot tot 10 jaar, afhankelijk van het product. Zo kunt u zorgeloos genieten van uw woning. De exacte garantieperiode vindt u terug in de documentatie bij uw product.
Wij maken gebruik van langzaam groeiend, CE-gecertificeerd Noord-Europees hout, afkomstig uit duurzaam beheerde bossen. Onze productie voldoet aan de ISO 9001 en ISO 14001 normen, wat garant staat voor een efficiënte en foutloze productie

Installatiehandleidingen
Onze houtproducten worden geleverd met een eenvoudig te volgen installatiehandleiding om u door het montageproces te helpen. Dit betekent dat het met basisgereedschap en een helpende hand mogelijk is om het merendeel van onze producten zelf te installeren. Wel adviseren wij om professionele hulp in te schakelen als u een product heeft besteld dat ingewikkelder of groter is, zoals bijvoorbeeld blokhutten, blokhutten, prefabwoningen en dergelijke.
"De woonvormen van morgen – vandaag al beschikbaar. Ontdek hoe modulaire bouw bijdraagt aan een duurzame toekomst."