Een kijkje achter de schermen!

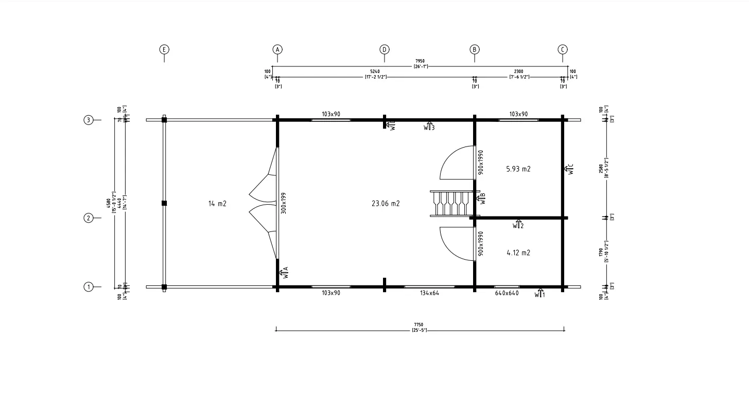
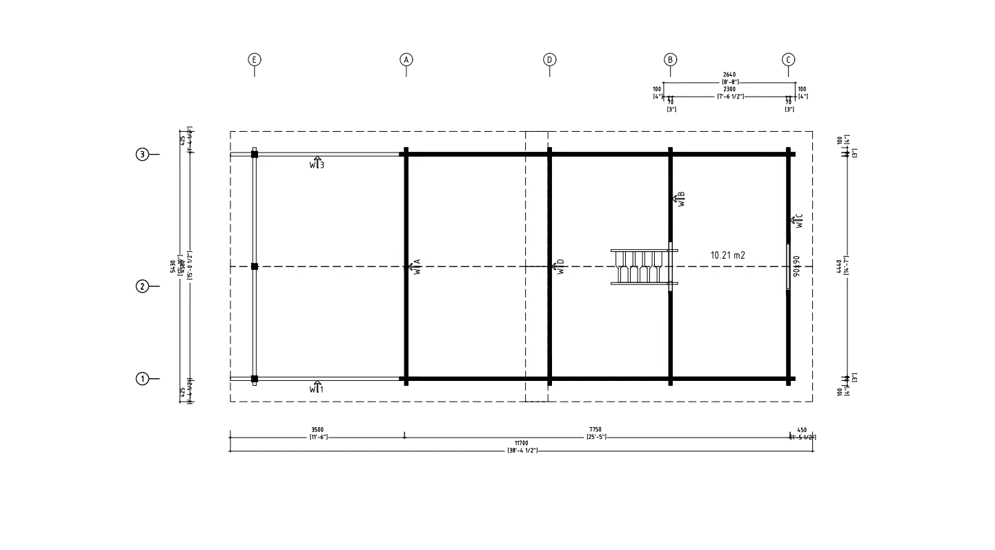
Lodge Horizon 70 – 43m² + 14m² (terras)
Afhalen is op dit moment niet beschikbaar
Offerte aanvragen
Vraag eenvoudig een vrijblijvende offerte aan. Wij sturen je binnen 1 werkdag een persoonlijk voorstel, afgestemd op jouw wensen en situatie.
Productinformatie
Lodge Horizon 70 biedt een perfecte balans tussen comfort, stijl en functionaliteit. Met een royale binnenruimte van 43,3 m² en een terras van 14 m², is deze lodge ideaal als vakantieverblijf, gastenverblijf of zelfs een permanente woning. Dankzij de grote ramen en dubbele openslaande deuren geniet je van een lichte, open sfeer en een prachtig uitzicht op de omgeving.
Gemaakt van hoogwaardig Noord-Europees sparrenhout, met een stevig 70 mm logprofiel, garandeert deze lodge duurzaamheid en uitstekende isolatie. De dubbelglas kantel- en draaivensters en massief houten binnendeuren zorgen voor een premium afwerking. Het klassieke zadeldak biedt extra hoogte en een ruimtelijk gevoel.
Dankzij de diverse funderingsopties kan de Horizon Lodge 70 B worden geplaatst op thermische blokken, een betonnen plaat, grindpad, kruipruimte of houten paalfundering.
✔ Ruim en licht ontwerp met 4 kamers
✔ Duurzaam Noord-Europees hout voor een lange levensduur
✔ Dubbelglas ramen en deuren voor optimale isolatie
✔ Ruim terras van 14 m² voor optimaal buitenleven
✔ Veelzijdig te gebruiken als vakantiewoning, thuiskantoor of gastenverblijf
Technische informatie:
Binnenruimte: 43.3
Log profiel: 70 mm
Daktype: Zadeldak
Aantal verdiepingen: 2
Aantal kamers: 4
Soort fundering: Thermische blokken, Betonnen plaat, Grind pad, Kruipruimte, Houten paalfundering, Straatstenen
Type afwerking: Naturel (onbehandeld)
Basisafmetingen: 1125 X 458 cm
Venstertype: Kantel & draai, 1-hand systeem
Soort vensterglas: Dubbel glas
Afmetingen kamer: 775 x 444 cm
Verdieping inbegrepen: Ja
Terras inbegrepen: Ja
Houtsoort: Noordse spar, massieve stammen
Type buitendeur: Dubbele deur, Folding
Type glas buitendeur: Dubbelglas
Nokhoogte: 445 cm
Hoogte dakrand: 243 cm
Dakoppervlakte: 66.5
Terrace m2: 14
Afmetingen buitendeur: 300 x 199 cm
Type binnendeur: Massief houten binnendeuren
Afmetingen binnendeur: 90 x 199 (2) cm
Wil jij een comfortabele en stijlvolle lodge in een natuurlijke omgeving? Bestel nu de Horizon Lodge 70 B en maak jouw woondroom werkelijkheid!
LET OP!
Prijs is exclusief eventuele betonnen basisconstructie en/of installatie service. Kiest u voor deze diensten, ontvangt u een aangepaste offerte.
Levering
Wij leveren internationaal, rechtstreeks vanaf onze productielocaties. De levering gebeurt standaard als bouwpakket, zorgvuldig verpakt en met gedetailleerde montage-instructies. Montage op locatie is optioneel mogelijk – vraag gerust naar de mogelijkheden. De levertijd varieert per model en seizoen, gemiddeld tussen de 4 en 10 weken of op afspraak!
Betaling
Bij bestelling vragen wij een aanbetaling van 35%. Het resterende bedrag wordt voldaan vóór levering, afhankelijk van het gekozen lever- of montageschema. Betalen kan veilig via bankoverschrijving of diverse betaalmethoden. Voor projecten op maat maken wij een duidelijke betalingsplanning.
Voltooide werken
Bekijk onze gerealiseerde projecten in binnen- en buitenland. Van Zweden tot Portugal: onze lodges en tiny houses staan op de mooiste locaties. Laat je inspireren door eerdere leveringen en ontdek wat er mogelijk is. Foto’s vindt je op de pagina Voltooide werken.
Garantie & Kwaliteit
Bij ARchitect Tiny Homes staan kwaliteit en vakmanschap voorop. Daarom bieden wij op onze producten een garantie tegen houtrot tot 10 jaar, afhankelijk van het product. Zo kunt u zorgeloos genieten van uw woning. De exacte garantieperiode vindt u terug in de documentatie bij uw product.
Wij maken gebruik van langzaam groeiend, CE-gecertificeerd Noord-Europees hout, afkomstig uit duurzaam beheerde bossen. Onze productie voldoet aan de ISO 9001 en ISO 14001 normen, wat garant staat voor een efficiënte en foutloze productie

Installatiehandleidingen
Onze houtproducten worden geleverd met een eenvoudig te volgen installatiehandleiding om u door het montageproces te helpen. Dit betekent dat het met basisgereedschap en een helpende hand mogelijk is om het merendeel van onze producten zelf te installeren. Wel adviseren wij om professionele hulp in te schakelen als u een product heeft besteld dat ingewikkelder of groter is, zoals bijvoorbeeld blokhutten, blokhutten, prefabwoningen en dergelijke.
"De woonvormen van morgen – vandaag al beschikbaar. Ontdek hoe modulaire bouw bijdraagt aan een duurzame toekomst."