Een kijkje achter de schermen!

Vakantiehuis Skov 70 – 64m²
Afhalen is op dit moment niet beschikbaar
Offerte aanvragen
Vraag eenvoudig een vrijblijvende offerte aan. Wij sturen je binnen 1 werkdag een persoonlijk voorstel, afgestemd op jouw wensen en situatie.
Productinformatie
Vakantiehuis Skov 70 combineert functionaliteit met Scandinavisch design en biedt een warme, natuurlijke uitstraling. Met een ruime binnenruimte van 64 m² en een efficiënte indeling over twee verdiepingen is dit de ideale recreatiewoning voor ontspanning en comfort.
De robuuste constructie van 70 mm massief Noord-Europees sparrenhout zorgt voor uitstekende duurzaamheid en isolatie, terwijl de dubbele beglazing en kantel-draai ramen bijdragen aan een aangename leefomgeving. De woning beschikt over drie kamers, waaronder een ruime leefruimte en een extra verdieping voor extra slaap- of opslagruimte.
Het zadeldak geeft het vakantiehuis een traditionele uitstraling en zorgt voor extra hoogte en een ruimtelijk gevoel binnenin. Dankzij de verschillende funderingsopties, zoals een betonnen plaat of thermische blokken, kan de woning op diverse ondergronden geplaatst worden.
Technische informatie
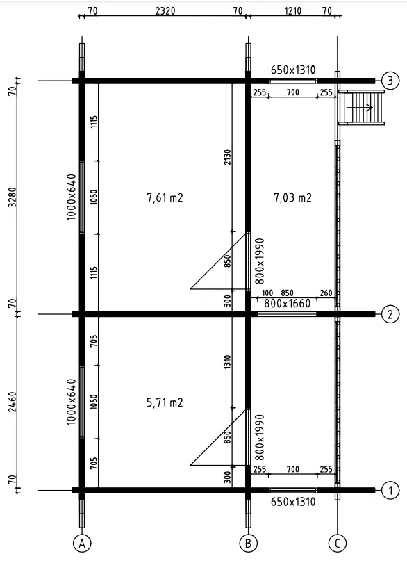
- Binnenruimte: 64 m²
- Verdiepingen: 2
- Aantal kamers: 3
- Daktype: Zadeldak
- Beglazing: Dubbel glas
- Fundering: Geschikt voor thermische blokken, betonnen plaat, grindpad of kruipruimte
- Buitendeuren: Dubbele deur en 1/2 glazen houten deur met slot en handvat
- Afmetingen: 6,99 m x 8,79 m
- Hoogte nok: 479,25 cm
Met het Vakantiehuis Skov 70 creëert u een stijlvolle en comfortabele plek om te genieten van rust en natuur, perfect als recreatiewoning of tweede huis
📞 Wil je meer weten over de Skov 70 of een offerte op maat ontvangen? Neem contact met ons op.
LET OP!
Prijs is exclusief eventuele betonnen basisconstructie en/of installatie service. Kiest u voor deze diensten, ontvangt u een aangepaste offerte.
Levering
Wij leveren internationaal, rechtstreeks vanaf onze productielocaties. De levering gebeurt standaard als bouwpakket, zorgvuldig verpakt en met gedetailleerde montage-instructies. Montage op locatie is optioneel mogelijk – vraag gerust naar de mogelijkheden. De levertijd varieert per model en seizoen, gemiddeld tussen de 4 en 10 weken of op afspraak!
Betaling
Bij bestelling vragen wij een aanbetaling van 35%. Het resterende bedrag wordt voldaan vóór levering, afhankelijk van het gekozen lever- of montageschema. Betalen kan veilig via bankoverschrijving of diverse betaalmethoden. Voor projecten op maat maken wij een duidelijke betalingsplanning.
Voltooide werken
Bekijk onze gerealiseerde projecten in binnen- en buitenland. Van Zweden tot Portugal: onze lodges en tiny houses staan op de mooiste locaties. Laat je inspireren door eerdere leveringen en ontdek wat er mogelijk is. Foto’s vindt je op de pagina Voltooide werken.
Garantie & Kwaliteit
Bij ARchitect Tiny Homes staan kwaliteit en vakmanschap voorop. Daarom bieden wij op onze producten een garantie tegen houtrot tot 10 jaar, afhankelijk van het product. Zo kunt u zorgeloos genieten van uw woning. De exacte garantieperiode vindt u terug in de documentatie bij uw product.
Wij maken gebruik van langzaam groeiend, CE-gecertificeerd Noord-Europees hout, afkomstig uit duurzaam beheerde bossen. Onze productie voldoet aan de ISO 9001 en ISO 14001 normen, wat garant staat voor een efficiënte en foutloze productie

Installatiehandleidingen
Onze houtproducten worden geleverd met een eenvoudig te volgen installatiehandleiding om u door het montageproces te helpen. Dit betekent dat het met basisgereedschap en een helpende hand mogelijk is om het merendeel van onze producten zelf te installeren. Wel adviseren wij om professionele hulp in te schakelen als u een product heeft besteld dat ingewikkelder of groter is, zoals bijvoorbeeld blokhutten, blokhutten, prefabwoningen en dergelijke.
"De woonvormen van morgen – vandaag al beschikbaar. Ontdek hoe modulaire bouw bijdraagt aan een duurzame toekomst."